Europa Ecco
Obiteljska kuća izrađena od punog drva debljine 70 milimetara s dodatnom izolacijom na vanjskim zidovima od mineralne vune debljine 100 milimetara te završeno silikatnom bojom ili premazom predstavlja idealan spoj estetike, ekološke osviještenosti i energetske učinkovitosti. Evo detaljnog opisa takve kuće:
- Materijali za izradu: Kuća je izgrađena od punog drva debljine 70 milimetara. Drvo je prirodan materijal koji pruža toplinu i šarm prostoru te stvara ugodan ambijent.
- Izolacija: Na vanjskim zidovima kuće dodatno je postavljena izolacija od mineralne vune debljine 100 milimetara. Ova izolacija osigurava visoku energetsku učinkovitost kuće, smanjujući gubitak topline zimi i održavajući ugodnu temperaturu unutar kuće ljeti.
- Vanjski sloj: Završni sloj na vanjskim zidovima kuće je izrađen od silikatne boje ili premaza. Silikatna boja je ekološki prihvatljiva i otporna na vremenske uvjete. Također dopušta drvetu da “diše”, čime se sprječava kondenzacija vlage unutar zidova.
- Arhitektonski stil: Kuća je oblikovana u tradicionalnom arhitektonskom stilu.
- Prozori i vrata: Prozori i vrata mogu biti izrađeni od drva ili modernih materijala s energetski učinkovitim staklima kako bi se povećala energetska učinkovitost kuće.
- Krov: Krov je izrađen od drvenih greda i završen falc limom koji garantira nepropusnost dugi niz godina. Također se može dodatno izolirati kako bi se osigurala učinkovita toplinska izolacija.
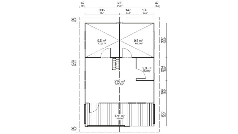
- Unutarnji dizajn: Unutrašnjost kuće je oblikovana prema vidljivom tlocrtu. Drvo se često koristi i za unutarnje obloge, stvarajući prirodan i topao osjećaj.
- Ekološka održivost: Kuća izrađena od drva s dodatnom izolacijom od mineralne vune ima manji ekološki otisak u usporedbi s tradicionalnim betonskim ili opečnatim kućama. Drvo je obnovljiv materijal, a izolacija pomaže u smanjenju potrošnje energije za grijanje i hlađenje.
- Ušteda energije: Zahvaljujući dobroj izolaciji i energetski učinkovitim prozorima i vratima, kuća će zahtijevati manju količinu energije za održavanje udobne temperature, što će rezultirati smanjenim troškovima energije.
- Okoliš: Kuća izrađena od prirodnih materijala i s visokom energetskom učinkovitošću doprinosi očuvanju okoliša i smanjenju emisija stakleničkih plinova.
Takva kuća kombinira estetiku i funkcionalnost te pruža ugodan i zdrav životni prostor s naglaskom na energetskoj učinkovitosti i ekološkoj održivosti.

















