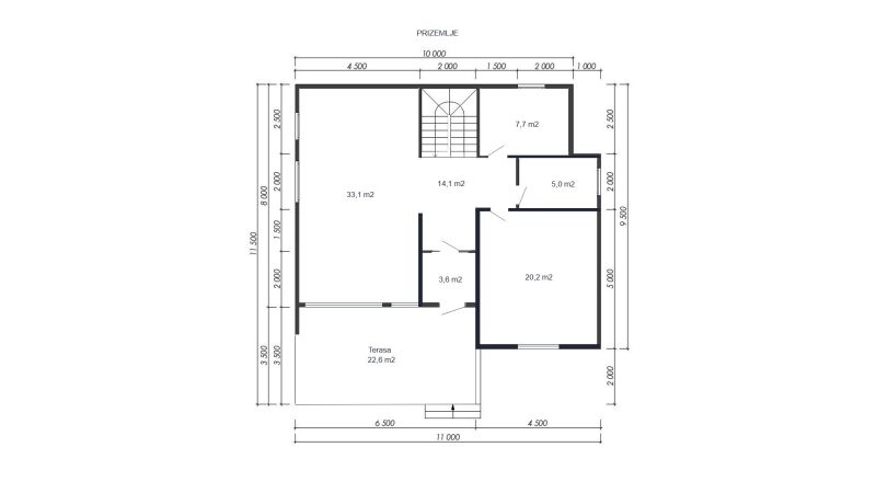
Dvokatnica
Dimenzije: 11,5×11 m
Površina kuće: 184,65 m2
Površina terase: 22,7 m2
Kupaonice: 2
Spavaće sobe: 4
Zaštita osobnih podataka veoma je važna na web stranici www.male-kuce.hr . Korištenje web stranice www.male-kuce.hr moguće je i bez pružanja osobnih podataka, međutim, ako ispitanik želi koristiti neke od usluga ove web stranice, obrada osobnih podataka može biti nužna. Ako je obrada podataka nužna, no međutim za nju ne postoji zakonska osnova, za pristanak će se uvijek pitati ispitanik.
Cijeli dokument sa pravilima privatnosti na ovoj web stranici.








